扫码购买正式版题库
- 海量题库
- 全真模拟
- 专项训练
- 预测试题
- 押题密卷
- 错题强化
【试题要求】
1.任务描述
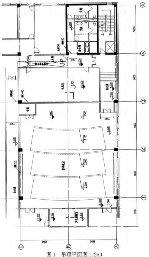
图 1、图 2 为提供的某高校教学楼阶梯教室吊顶平面图和剖面图,根据任务要求,经济合理地绘出全空气系统空调送、回风和排风平面布置图。
2.任务说明
(1)送风要求:主风道始端断面面积不小于 0.65 ㎡,通往教室的主风道始端断面面积不小于0.55 ㎡,通往休息室的风道断面面积不小于 0.18 ㎡,教室、休息室内末端支风道尺寸为 600mm ×300mm,声光控制室的末端支风道尺寸为 150mm×150mm。风道不得占用其他设备空间,送风口的形式(下送和侧送)根据吊顶形式确定,其中教室内灯槽位置按侧送风口布置。
(2)回风要求:主风道始端断面面积不小于 0.49 ㎡,教室吊顶采用条缝回风口 16 个。
(3)排风要求:排风道净尺寸为 150mm×150mm。
(4)其他条件
①层高 5m,北走廊①~③轴梁高 800mm,教室内①~③轴梁高 1400mm,
轴梁高 750mm,④轴门洞梁高 650mm。走廊不设送回风口,另有系统解决。
②送回风主风道经清洁室吊顶与竖向风道井相接。
3.任务要求
按照任务说明和所给图例,在吊顶平面图中的阶梯教室、休息室、声光控制室、厕所、清洁室、走廊给出以下内容:
(1)送风管道和送风口布置,并表示出送风管道的断面尺寸(宽×高)。
(2)回风管道和回风口布置,并表示出回风管道的断面尺寸(宽×高)。
(3)排风管道和排风口(排风扇)布置。
4.图例(见详表)
问答题
【试题要求】 1.任务描述 图 1、图 2 为提供的某高校教学楼阶梯教室吊顶平面图和剖面图,根据任务要求,经济合理地绘出全空气系统空调送、回风和排风平面布置图。![]()
2.任务说明 (1)送风要求:主风道始端断面面积不小于 0.65 ㎡,通往教室的主风道始端断面面积不小于0.55 ㎡,通往休息室的风道断面面积不小于 0.18 ㎡,教室、休息室内末端支风道尺寸为 600mm ×300mm,声光控制室的末端支风道尺寸为 150mm×150mm。风道不得占用其他设备空间,送风口的形式(下送和侧送)根据吊顶形式确定,其中教室内灯槽位置按侧送风口布置。 (2)回风要求:主风道始端断面面积不小于 0.49 ㎡,教室吊顶采用条缝回风口 16 个。 (3)排风要求:排风道净尺寸为 150mm×150mm。 (4)其他条件 ①层高 5m,北走廊①~③轴梁高 800mm,教室内①~③轴梁高 1400mm,
轴梁高 750mm,④轴门洞梁高 650mm。走廊不设送回风口,另有系统解决。 ②送回风主风道经清洁室吊顶与竖向风道井相接。 3.任务要求 按照任务说明和所给图例,在吊顶平面图中的阶梯教室、休息室、声光控制室、厕所、清洁室、走廊给出以下内容: (1)送风管道和送风口布置,并表示出送风管道的断面尺寸(宽×高)。 (2)回风管道和回风口布置,并表示出回风管道的断面尺寸(宽×高)。 (3)排风管道和排风口(排风扇)布置。 4.图例(见详表)
![]()
最新更新

热门题库
- 自考(医学)题库
- 注册环保工程师题库
- 特种设备焊接作业题库
- 健康管理师题库
- 高级会计题库
- 二级注册建筑师题库
- 医师类题库
- 煤矿班组长题库
- 安全员题库
- 公安政法干警题库
- 焊工作业题库
- 初级管理会计师题库
- 执业药师题库
- 银行招聘考试题库
- 汽车修理工题库
- 二级建造师题库
- 试验检测师(含助理)题库
- 一级注册建筑师题库
- 注册结构工程师题库
- 中式烹调师题库
- 质量工程师题库
- 理工类题库
- 石油天然气安全作业题库
- 三支一扶题库
- 成考(专升本)题库
- A特种设备安全管理题库
- 安全员(三类人员)题库
- 报检员题库
- 主要负责人题库
- 施工员题库
- 金属非金属矿山安全作业题库
- 同等学力申硕题库
- 事业单位公开招聘题库
- 投资项目管理师题库
- 审计师题库
- 社会工作者题库
- 教师招聘题库
- 资产评估师题库
- 咨询工程师题库
- 标准员题库
- (初级)经济师题库
- 教师资格题库
- 国家公务员题库
- 消防工程师题库
- 一级造价工程师题库
- 注册城乡规划师题库
- 国家电网招聘题库
- 药学类题库
- 安全工程师题库
- Q起重机械作业题库
- 基金从业资格题库
- 物业管理师题库
- 卫生类题库
- 高校教师资格证题库
- 电工题库
- (中级)银行从业资格题库
- 企业人力资源管理师题库
- 税务师题库
- 会计从业资格考试题库
- 中药学类题库
- 注册测绘师题库
- 危险化学品安全作业题库
- 营养师题库
- 安全管理人员题库
- 导游资格证题库
- 成考(高起点)题库
- 护理类题库
- 岩土工程师题库
- 高处作业题库
- 投资银行业务-保荐代表人题库
- 茶艺师题库
- 证劵从业(旧版)题库
- 房地产经纪协理题库
- 注册消防工程师题库
- 报关员题库
- P气瓶作业题库
- 房地产估价师题库
- 钳工题库
- 电工作业题库
- 房地产经纪人题库
- D压力管道作业题库
- 检验类题库
- T电梯作业题库
- 环境影响评价工程师题库
- (中级)经济师题库
- 道路运输题库
- 煤矿特种作业人员题库
- 招标师题库
- 陕西省-社区专职工作人员招聘题库
- 制冷与空调作业题库
- 健康管理师题库
- 汽车驾驶员题库
- 会计从业题库
- 卫生招聘考试题库
- 一级建造师题库
- 演出经纪人题库
- 劳务员题库
- 公用设备工程师题库
- 研究生入学题库
- 统计师题库
- 中式面点师题库
- 消防设施操作员题库
- 焊工题库
- 证劵从业(新版)题库
- 设备监理师题库
- 初级会计职称题库
- 软件水平考试题库
- 二级造价工程师题库
- G锅炉作业题库
- 资料员题库
- (高级)经济师题库
- 监管人员执法题库
- 监理工程师题库
- 理财规划师题库
- 证券投资顾问题库
- 建筑特殊工种题库
- 注册电气工程师题库
- 煤矿主要负责人题库
- R压力容器作业题库
- 证券分析师题库
- 注册会计师题库
- 烟花爆竹安全作业题库
- 机械员题库
- 法律职业资格(原司法考试)题库
- 保育员题库
- 省公务员-行测题库
- 材料员题库
- 土木工程师(水利水电)题库
- 主治类题库
- 车工题库
- 煤矿安全管理人员题库
- 综合类题库
- (初级)银行从业资格题库
- 军队文职人员招聘题库
- 中级会计职称题库
- N厂内专用机动车辆作业题库
- 质量员题库
- 期货从业资格题库
- BIM工程师题库
- 心理咨询师题库
- 美容师题库
- 中级安全工程师题库
- 冶金(有色)生产安全作业题库
- 土地登记代理人题库
- 西式面点师题库

2.任务说明
(1)送风要求:主风道始端断面面积不小于 0.65 ㎡,通往教室的主风道始端断面面积不小于0.55 ㎡,通往休息室的风道断面面积不小于 0.18 ㎡,教室、休息室内末端支风道尺寸为 600mm ×300mm,声光控制室的末端支风道尺寸为 150mm×150mm。风道不得占用其他设备空间,送风口的形式(下送和侧送)根据吊顶形式确定,其中教室内灯槽位置按侧送风口布置。
(2)回风要求:主风道始端断面面积不小于 0.49 ㎡,教室吊顶采用条缝回风口 16 个。
(3)排风要求:排风道净尺寸为 150mm×150mm。
(4)其他条件
①层高 5m,北走廊①~③轴梁高 800mm,教室内①~③轴梁高 1400mm,
轴梁高 750mm,④轴门洞梁高 650mm。走廊不设送回风口,另有系统解决。
②送回风主风道经清洁室吊顶与竖向风道井相接。
3.任务要求
按照任务说明和所给图例,在吊顶平面图中的阶梯教室、休息室、声光控制室、厕所、清洁室、走廊给出以下内容:
(1)送风管道和送风口布置,并表示出送风管道的断面尺寸(宽×高)。
(2)回风管道和回风口布置,并表示出回风管道的断面尺寸(宽×高)。
(3)排风管道和排风口(排风扇)布置。
4.图例(见详表)