扫码购买正式版题库
- 海量题库
- 全真模拟
- 专项训练
- 预测试题
- 押题密卷
- 错题强化
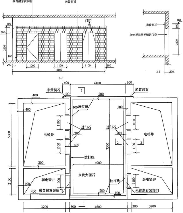
某写字楼标准层电梯厅共20套,施工企业中标的“分部分项工程和单价措施项目清单与计价表”见表4-73,现根据图4-23“标准层电梯厅楼地面铺装尺寸图”、图4-24“标准层电梯厅吊顶布置尺寸图”所示的电梯厅土建装修竣工图及相关技术参数,按下列问题要求,编制电梯厅的竣工结算。
表4-73 分部分项工程和单价措施项目清单与计价表
图4-23 标准层电梯厅楼地面铺装尺寸图
图4-24 标准层电梯厅吊顶布置尺寸图
说明:
(1)本写字楼标准层电梯厅共20套。
(2)墙面干挂石材高度为3000mm,其石材面层外皮距结构面尺寸为100mm。
(3)强弱电竖井门为钢骨架石材装饰门(主材同墙体),其门口不设过门石。
(4)电梯厅墙面装饰做法延展到走廊600mm。
表4-74 装修做法表
【问题】
1.根据工程竣工图纸及技术参数,按《房屋建筑与装饰工程工程量计算规范》(GB 50854—2013)的计算规则,在表4-75“工程量计算表”中,列式计算该20套电梯厅楼地面、墙面(装饰高度3000mm)、天棚、门和门套等土建装饰分部分项工程的结算工程量(竖井装饰门内的其他项目不考虑)。
表4-75 工程量计算表
2.根据问题1的计算结果及合同文件中“分部分项工程和单价措施项目清单与计价表”的相关内容,按《建设工程工程量清单计价规范》(GB 50500—2013)的要求,在表4-76“分部分项工程和单价措施项目清单与计价表”中编制该土建装饰工程结算。
表4-76 分部分项工程和单价措施项目清单与计价表
3.按该分部分项工程竣工结算金额1600000.00元,单价措施项目清单结算金额为18000.00元取定。安全文明施工费按分部分项工程结算金额的3.5%计取,其他项目费为零,人工费占分部分项工程及措施项目费的13%,规费按人工费的21%计取,营业税及附加按11%计取。按《建设工程工程量清单计价规范》(GB 50500—2013)的要求,列式计算安全文明施工费、措施项目费、规费、营业税金及附加费,并在表4-77“单位工程竣工结算汇总表”中编制该土建装饰工程结算。(计算结果保留两位小数)
表4-77 单位工程竣工结算汇总表
问答题
某写字楼标准层电梯厅共20套,施工企业中标的“分部分项工程和单价措施项目清单与计价表”见表4-73,现根据图4-23“标准层电梯厅楼地面铺装尺寸图”、图4-24“标准层电梯厅吊顶布置尺寸图”所示的电梯厅土建装修竣工图及相关技术参数,按下列问题要求,编制电梯厅的竣工结算。 表4-73 分部分项工程和单价措施项目清单与计价表![]()
图4-23 标准层电梯厅楼地面铺装尺寸图
图4-24 标准层电梯厅吊顶布置尺寸图 说明: (1)本写字楼标准层电梯厅共20套。 (2)墙面干挂石材高度为3000mm,其石材面层外皮距结构面尺寸为100mm。 (3)强弱电竖井门为钢骨架石材装饰门(主材同墙体),其门口不设过门石。 (4)电梯厅墙面装饰做法延展到走廊600mm。 表4-74 装修做法表
【问题】 1.根据工程竣工图纸及技术参数,按《房屋建筑与装饰工程工程量计算规范》(GB 50854—2013)的计算规则,在表4-75“工程量计算表”中,列式计算该20套电梯厅楼地面、墙面(装饰高度3000mm)、天棚、门和门套等土建装饰分部分项工程的结算工程量(竖井装饰门内的其他项目不考虑)。 表4-75 工程量计算表
2.根据问题1的计算结果及合同文件中“分部分项工程和单价措施项目清单与计价表”的相关内容,按《建设工程工程量清单计价规范》(GB 50500—2013)的要求,在表4-76“分部分项工程和单价措施项目清单与计价表”中编制该土建装饰工程结算。 表4-76 分部分项工程和单价措施项目清单与计价表
3.按该分部分项工程竣工结算金额1600000.00元,单价措施项目清单结算金额为18000.00元取定。安全文明施工费按分部分项工程结算金额的3.5%计取,其他项目费为零,人工费占分部分项工程及措施项目费的13%,规费按人工费的21%计取,营业税及附加按11%计取。按《建设工程工程量清单计价规范》(GB 50500—2013)的要求,列式计算安全文明施工费、措施项目费、规费、营业税金及附加费,并在表4-77“单位工程竣工结算汇总表”中编制该土建装饰工程结算。(计算结果保留两位小数) 表4-77 单位工程竣工结算汇总表
![]()
最新更新

热门题库
- 检验类题库
- 安全工程师题库
- 护理类题库
- 制冷与空调作业题库
- 中式面点师题库
- 安全员(三类人员)题库
- 焊工题库
- 汽车驾驶员题库
- 茶艺师题库
- 钳工题库
- 投资项目管理师题库
- 中式烹调师题库
- 中级安全工程师题库
- 安全员题库
- 公安政法干警题库
- 教师资格题库
- 高级会计题库
- 三支一扶题库
- 煤矿特种作业人员题库
- 国家公务员题库
- Q起重机械作业题库
- 演出经纪人题库
- 注册消防工程师题库
- 会计从业资格考试题库
- 安全管理人员题库
- P气瓶作业题库
- 基金从业资格题库
- 煤矿安全管理人员题库
- 公用设备工程师题库
- 金属非金属矿山安全作业题库
- 电工题库
- 软件水平考试题库
- 建筑特殊工种题库
- 审计师题库
- 岩土工程师题库
- 二级建造师题库
- 煤矿主要负责人题库
- 执业药师题库
- 健康管理师题库
- 焊工作业题库
- 施工员题库
- 设备监理师题库
- 研究生入学题库
- 冶金(有色)生产安全作业题库
- 二级注册建筑师题库
- 报检员题库
- 西式面点师题库
- 高处作业题库
- 卫生类题库
- 美容师题库
- 初级会计职称题库
- 营养师题库
- 成考(专升本)题库
- 注册环保工程师题库
- 试验检测师(含助理)题库
- 期货从业资格题库
- A特种设备安全管理题库
- 资料员题库
- 物业管理师题库
- 理财规划师题库
- 税务师题库
- 一级造价工程师题库
- 统计师题库
- 注册会计师题库
- 事业单位公开招聘题库
- 二级造价工程师题库
- T电梯作业题库
- 环境影响评价工程师题库
- 陕西省-社区专职工作人员招聘题库
- 材料员题库
- 注册结构工程师题库
- 土木工程师(水利水电)题库
- 同等学力申硕题库
- (高级)经济师题库
- D压力管道作业题库
- 招标师题库
- 标准员题库
- 车工题库
- 质量工程师题库
- 高校教师资格证题库
- 消防设施操作员题库
- 保育员题库
- 证劵从业(旧版)题库
- (中级)银行从业资格题库
- 机械员题库
- 土地登记代理人题库
- 一级建造师题库
- 心理咨询师题库
- 劳务员题库
- BIM工程师题库
- 证券投资顾问题库
- (初级)银行从业资格题库
- 证劵从业(新版)题库
- 汽车修理工题库
- 自考(医学)题库
- 注册测绘师题库
- 监管人员执法题库
- 资产评估师题库
- 咨询工程师题库
- 教师招聘题库
- 医师类题库
- 导游资格证题库
- 中级会计职称题库
- 注册城乡规划师题库
- (初级)经济师题库
- 主治类题库
- 理工类题库
- 卫生招聘考试题库
- 成考(高起点)题库
- 质量员题库
- 综合类题库
- 房地产估价师题库
- 电工作业题库
- 证券分析师题库
- 房地产经纪协理题库
- 省公务员-行测题库
- 军队文职人员招聘题库
- 房地产经纪人题库
- 中药学类题库
- 消防工程师题库
- 银行招聘考试题库
- 药学类题库
- 一级注册建筑师题库
- 煤矿班组长题库
- 投资银行业务-保荐代表人题库
- 报关员题库
- 特种设备焊接作业题库
- R压力容器作业题库
- N厂内专用机动车辆作业题库
- 烟花爆竹安全作业题库
- 企业人力资源管理师题库
- 会计从业题库
- 石油天然气安全作业题库
- 初级管理会计师题库
- 道路运输题库
- 注册电气工程师题库
- (中级)经济师题库
- G锅炉作业题库
- 健康管理师题库
- 法律职业资格(原司法考试)题库
- 社会工作者题库
- 危险化学品安全作业题库
- 监理工程师题库
- 主要负责人题库
- 国家电网招聘题库

图4-23 标准层电梯厅楼地面铺装尺寸图
图4-24 标准层电梯厅吊顶布置尺寸图
说明:
(1)本写字楼标准层电梯厅共20套。
(2)墙面干挂石材高度为3000mm,其石材面层外皮距结构面尺寸为100mm。
(3)强弱电竖井门为钢骨架石材装饰门(主材同墙体),其门口不设过门石。
(4)电梯厅墙面装饰做法延展到走廊600mm。
表4-74 装修做法表
【问题】
1.根据工程竣工图纸及技术参数,按《房屋建筑与装饰工程工程量计算规范》(GB 50854—2013)的计算规则,在表4-75“工程量计算表”中,列式计算该20套电梯厅楼地面、墙面(装饰高度3000mm)、天棚、门和门套等土建装饰分部分项工程的结算工程量(竖井装饰门内的其他项目不考虑)。
表4-75 工程量计算表
2.根据问题1的计算结果及合同文件中“分部分项工程和单价措施项目清单与计价表”的相关内容,按《建设工程工程量清单计价规范》(GB 50500—2013)的要求,在表4-76“分部分项工程和单价措施项目清单与计价表”中编制该土建装饰工程结算。
表4-76 分部分项工程和单价措施项目清单与计价表
3.按该分部分项工程竣工结算金额1600000.00元,单价措施项目清单结算金额为18000.00元取定。安全文明施工费按分部分项工程结算金额的3.5%计取,其他项目费为零,人工费占分部分项工程及措施项目费的13%,规费按人工费的21%计取,营业税及附加按11%计取。按《建设工程工程量清单计价规范》(GB 50500—2013)的要求,列式计算安全文明施工费、措施项目费、规费、营业税金及附加费,并在表4-77“单位工程竣工结算汇总表”中编制该土建装饰工程结算。(计算结果保留两位小数)
表4-77 单位工程竣工结算汇总表